
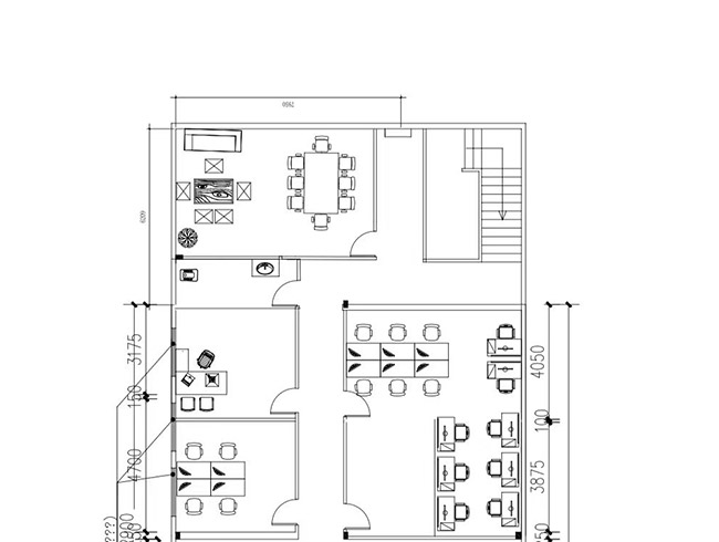
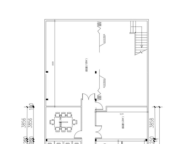
项目:独栋懋隆文化产业创意园 20 栋西A
面积:500 平米
租金:4元/天/平(含物业费,发票)
状态:独立门头,遗留装修,园林式办公,两层可分租(200—450)平米
用途:办公,商业经营活动,
签约年限:2-5年
付款方式:押三付三
停车费:1600元半年
水费:9.5元/吨
电费:1.31元/度
位置:朝阳区朝阳北路三间房黄渠地铁六号线
备注:距六号线黄渠站300米
园区配套:美食广场,咖啡厅,酒吧,体育馆(羽毛球、篮球 等),瑜伽馆,超市,懋隆艺术馆,银行,学校,餐饮一条街等等
1200 平米
1495 平米
171 平米
100000 平米
67 平米
762 平米
122 平米
180 平米
370 平米
2000 平米