
海淀西三旗公交运输七厂老旧厂房改造项目,中桢科技大厦精装交付项目出租
国企产权,燃气地暖,吸顶空调,有员工食堂
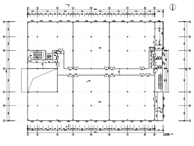
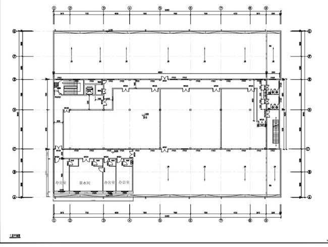
5000平3层独栋,可分租(150-200-300-450-600-890-2000)
租金3元
32平米 X 20间小房间(均价3500~3600)
可注册公司
合同:一年起
位置优势:距离8号线育新地铁站两公里,门口就是公交站站
1200 平米
1495 平米
171 平米
100000 平米
67 平米
762 平米
122 平米
180 平米
370 平米
2000 平米