
北清路厂库房独门独院1000平米出租(房屋500平米,院落500平米,有动力电,交通方便,价格优惠,适合开办小型

平谷厂房出租,一个院内2个厂房。2500平米一个,2200平米一个。招库房用短租。一年一签

房子是在朝阳公园桥往东,第二个红绿灯左转的星火西路上,有遗留装修,临马路,交通非常方便,有免费停车位层...

昌平百善工业区10亩独院,新盖厂房4000平出租
位于昌平百善工业区内占地12亩,内有厂房4000平,厂房高6.5米...

我是承接仓库地面的环氧地坪施工,如果您的仓库水泥地面起砂厉害,地面坑洼不平,有空鼓,整体视眼效果不好...

西邻京承高速,东邻101国道(京密路),交通便利,环境优雅。有意者价格面议!!!!

厂房是一层,层高9米,独门独院,可注册,可环评,厂区有食堂,宿舍,配套齐全,

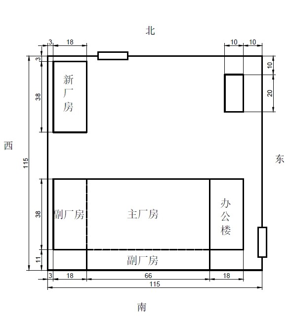
一、厂房基本信息
双层办公楼1400平方米,水、暖、电齐全,楼内可办公、住人;
主厂房2500平方米房...

现在代厂房,上下两层楼,宽敞,明亮,自有配电设备,设施齐全。有员工宿舍、食堂、洗浴房等。

北京昌平北七家工业园八仙工业区库厂房出租
环境好,出入方便,可注册
面积是:10-10000平米不等 可分...