
厂房位于昌平阳坊,温南路边,厂房面积为5000平米,沿高8.5米,厂房最高处为12米,办公楼1000平米,厂房结构

昌平阳坊砖混结构厂房出租
厂房位于昌平阳坊,紧邻温南路,厂房为单层装混结构,保温、消防好,厂房面积...

昌平六环能办理环评厂房出租
厂房位于昌平六环百善,厂房占地面积20亩,厂房建筑面积1万平米,单层框架结构...

八达岭高速国有土地厂房出租
厂房位于昌平八达岭高速边,厂房面积7200平米,厂房沿高6米,顶高7米,单层钢...

昌平白庙工业园标准厂房出租
厂房位于昌平白庙工业开发区内,厂房面积为5500平米,可以分租,配套办公2500...

昌平小汤山房高6米厂房出租
厂房位于昌平小汤山,距离六环非常近,厂房面积为6000平米,房高6米,彩钢顶,...

昌平南邵国际化厂房出租
厂房位于昌平南邵,新建高标准厂房,分单层框架装混和多层框架装混结构,单层厂房...

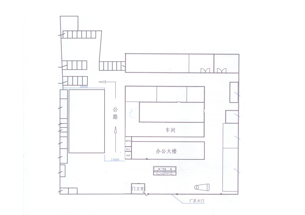
厂房位于昌平区百泉庄,京藏高速和京新高速之间,下高速2公里即到,距昌平县城2公里,占地15亩,总建筑面积...

昌平科技园区、沙河、崔村、马池口等多处厂房出租
1、昌平科技园6000平米独院厂房
中关村科技园...