首页
厂房信息
库房信息
土地信息
写字楼信息
一手园区
求租求购
新闻资讯
登录
广告
广告
搜 索
联东U谷
金田恒业
茂华工厂
免费选址通道
首页 >
厂房信息
> 顺义区赵全营厂房转让出租
顺义区赵全营厂房转让出租
编号:WS_89108 更新时间: 2015/9/9 13:52:00
基本信息
所在区域:
顺义区-其他 离牛栏山环岛和京密路101国道5公里,离京承高速11出口7公里;离首都机场17公里
占地面积:
14000平米
建筑面积:
14000
平米
车间面积:
8405平米
办公面积:
3825平米
供求类型:
转让
参考价格:
面议
联系方式:
黄女士
13520221780
开通网站会员,享有更多服务 18500826848
详细信息
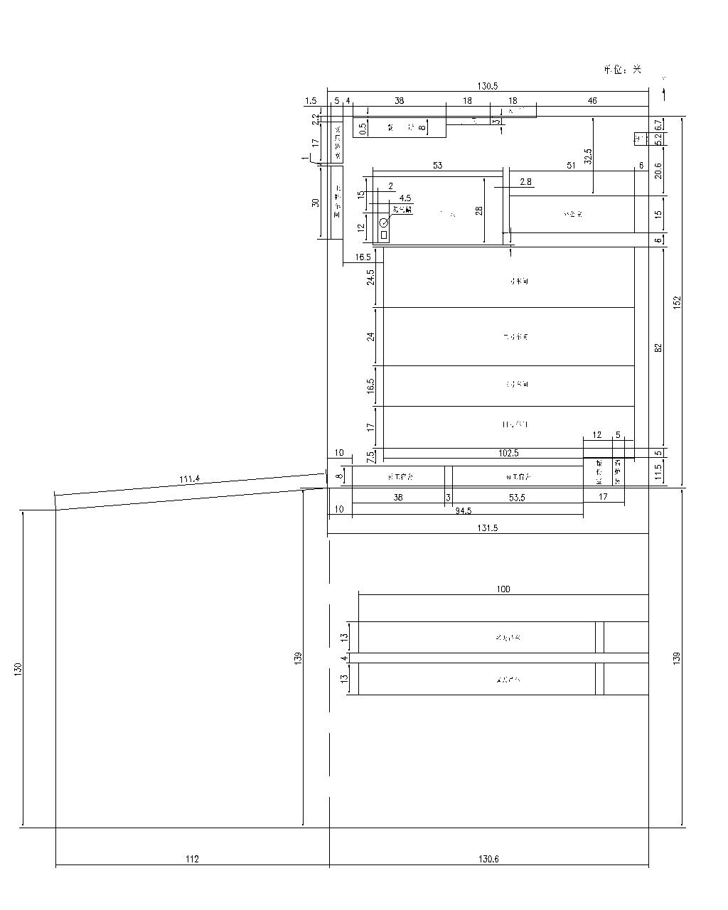
占地53000平方米
厂区独门独院占地88亩,包括5层办公楼一座、二层宿舍楼一座、一层宿舍楼一座、 厂房4大间,建筑面积共计14000平米
1.办公楼五层3825平方 带电梯1部
2.车间净高度12米 24.5X102.5=2511.25平方 带16吨天车1台及10吨天车1台
3.车间净高度12米 24.5X102.5=2511.25平方 带16吨天车1台及10吨天车1台
4.车间净高度12米 16.5X102.5=1691.25平方 带25吨天车1台及10吨天车1台
5.车间净高度9米 16.5X102.5=1691.25平方 带5吨天车2台
6.车间面积合计8405平方
7.库房面积5米X30=150平方
8.厨房面积8米X38米=304平方
9.门卫面积3米X18米=54平方
10.住宿二层一座面积53.5X8=428平方X2=856平方
11.住宿一层一座面积38X8=304平方
12.型煤锅炉 0.9吨供热
13.锅炉房面积17X11.5=195.5平方
14.变压器2000KW+315KW=2315KW二台
15.占地80亩其中30亩有建设用地证 空地50亩有二台16吨龙门天车
16.时间2038年到期可继签
联系人:黄女士
电话:18800122763
用途:适合投资建厂、办校、仓储等使用。
价格:面议,具体视情况可商议
有意者欢迎来电洽谈!中介广告勿扰!
图片展示
推荐房源
通州马驹桥厂房..
类型:厂房
13520221780
顺义空港C区标准..
类型:厂房
13520221780
河北省廊坊市固..
类型:厂房
13520221780
通州、顺义、平..
类型:厂房
13520221780
推荐房源
新元科技园厂房..
类型:厂房
13520221780
天津市静海区中..
类型:厂房
13520221780
天津市武清区多..
类型:厂房
13520221780
最新厂房
(出租)通州宋庄300小..
300 平米
(出租) (出租)丰台区..
5000 平米
(出租)出租厂房住房整..
480 平米
(出租)背靠京开高速与..
300 平米
(出租) (出租)丰台区..
5000 平米
(出租)顺义金马工业区..
5300 平米
山东省滨州市阳信县河..
3300 平米
大兴区庞各庄开发区厂..
7 亩
北京市房山区石楼镇杨..
1000 平米
(出租)位于六环路出口..
1550 平米