首页
厂房信息
库房信息
土地信息
写字楼信息
一手园区
求租求购
新闻资讯
登录
广告
广告
搜 索
联东U谷
金田恒业
茂华工厂
免费选址通道
首页 >
厂房信息
> 通州马驹桥标准厂房出租
通州马驹桥标准厂房出租
编号:WS_55913 更新时间: 2012/3/12 14:55:00
基本信息
所在区域:
通州区-北关 通州马驹桥
占地面积:
4300平米
建筑面积:
4300
平米
车间面积:
1300平米
办公面积:
1500平米
供求类型:
出租
参考价格:
面议
联系方式:
刘经理
13520221780
开通网站会员,享有更多服务 18500826848
详细信息
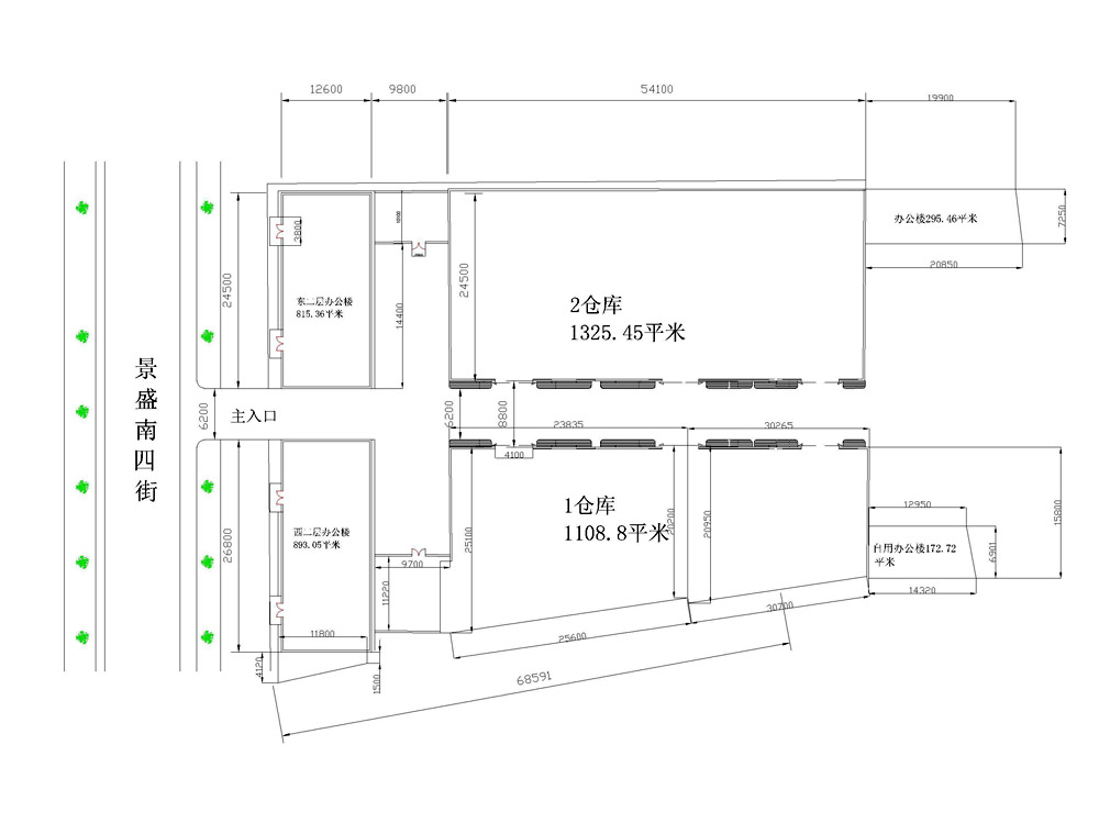
项目一、马驹桥临街办公楼及厂房
一、位置:厂房位于通州马驹桥2号桥景盛南四街,紧邻联东U谷工业开发区。
二、面积:厂区总计约4300平方米(详见厂区平面图)
1号厂房1100平方米(长54米、宽26米),配有办公、住宿楼836平方米(临街,可独立出租)
2号厂房1300平方米(长54米、宽17.8-24米),配有办公、住宿楼720平方米(临街,可独立出租)
三、厂区内环境优美且提供优质物业服务,水电齐全,交通便利,欢迎来电洽谈合作!
项目二、北京机场辅路科技园办公、库房出租
朝林科技园位于朝阳区机场高速路苇沟出入口,东邻蟹岛度假村、北京郁金香花园,西接国际航空俱乐部,交通十分便利。园区面积28000㎡,建筑总面积12000㎡,园区绿化率40%以上,北京市花园式单位,优美的办公环境。自有产权,现有大开间库房、办公用房、网球馆及会所。园区内基础设施完善,水电及餐厅配套设施。园区物业管理成熟,智能安全管理设备完善,24小时安防巡逻。可用作培训中心、会议中心、健身会所、驻京办、艺术中心、装饰设计、科研及文化创意产业等。欢迎有意者来电咨询、洽谈。
图片展示
推荐房源
通州马驹桥厂房..
类型:厂房
13520221780
顺义空港C区标准..
类型:厂房
13520221780
河北省廊坊市固..
类型:厂房
13520221780
通州、顺义、平..
类型:厂房
13520221780
推荐房源
新元科技园厂房..
类型:厂房
13520221780
天津市静海区中..
类型:厂房
13520221780
天津市武清区多..
类型:厂房
13520221780
最新厂房
(出租)顺义机场李桥厂..
1822 平米
(出租)南六环长阳出口..
1500 平米
(出租) 6500平米厂库..
6500 平米
(出租)通州宋庄300小..
300 平米
(出租) (出租)丰台区..
5000 平米
(出租)出租厂房住房整..
480 平米
(出租)背靠京开高速与..
300 平米
(出租) (出租)丰台区..
5000 平米
(出租)顺义金马工业区..
5300 平米
山东省滨州市阳信县河..
3300 平米