
【地理位置】厂房位于天津滨海新区临津产业园内,属于京津唐区纽核心区域.紧邻滨保高速、长深高速、塘承高速、津蓟高速、滨海高速、距近两个高速出口仅5公里,距离高铁站8公里,园区内有公交车,地理位置优越,交通方便。
【面积详情】独门独院,独栋二层+独栋单层+办公+生活区宿舍食堂
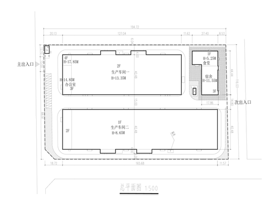
总占地面积:22603平米,总建筑面积:20350平米.
1.生产一车间10900平方米(两层有电梯),连接独立三层综合办公楼.
2.生产二车间7200平方米(一层),连接独立二层综合办公楼
3.宿舍及食堂1900平方米.
4.门卫监控室42平方米.
5.消防水池及水泵房250平方米.
6.绿地1000平方米.
7.容积率:1.17.
【结构】:厂房钢结构,办公室、宿舍及厨房砖混结构
【层高】:单层车间高8.6米(可配天车),二层车间一层高8.6米,二层高5米.
【适合行业】:家具制作、设备制造、金属制品、机械加工等行业.
园区租售均可(整体出租),产权: 已取得房产证,有意者电话咨询!
1890 平米
521 平米
580 平米
6500 平米
200 平米
3500 平米
60000 平米
4000 平米
550 平米
1000 平米