
联东U谷 凯迪斯科技园(大兴磁各庄)
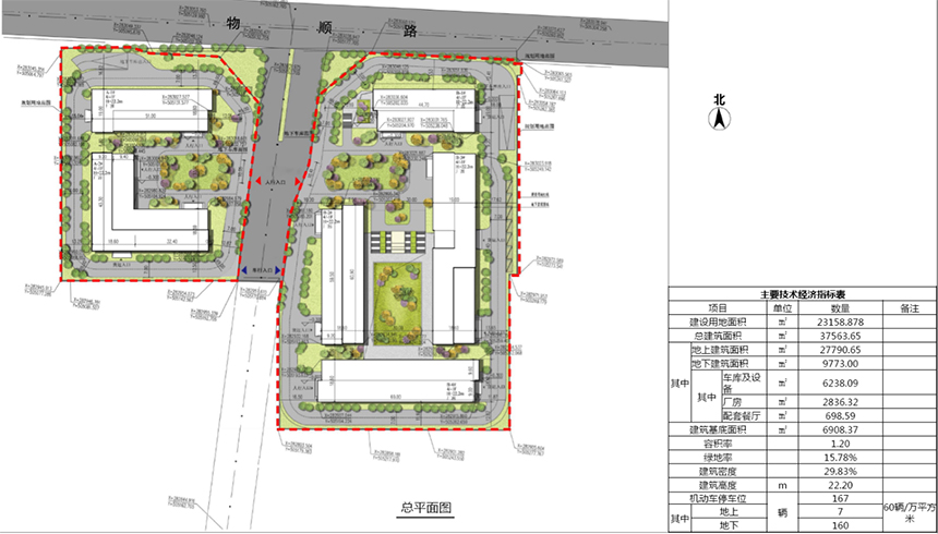
【项目介绍】联东U谷 凯迪斯科技园,总占地面积39亩,建筑面积3.4万平方米,容积率1.2,外立面造型采用横向的体块穿插逻辑和挺拔的竖向开窗,现代感十足,整体色彩以白色和深咖色为主要基调,通过深浅色的合理拓扑、形成稳重而舒适的立面效果。
【项目定位】高端智造产业园、中日合作高科技产业园
【项目位置】北京市大兴区南六环磁各庄南1公里,南中轴路西侧800米
【产品分类】共分为A、B两个区域均为独门独院,以独栋为主,A区12000平,B区23000平
A区项目介绍(独院12000平):
由A1和A2两栋5层独栋组成,共计12000平
A1为4670平5层独栋,单层面积974平
A2为7131平5层独栋,单层面积1527平
户型参数:
层高:一层5.4米,标准层4.5米,顶层4.2米
承重:一层2吨/平,2-5层500KG/吨
货梯:3吨,尺寸为2.5米*2.2米*2.1米
柱距:8.1*8.1米
物流门:3*3.5米
B区项目介绍(独院23000平):
由B1、B2、B3、B4四栋4层独栋组成,共计23000平
B1为3380平4层独栋,单层面积907平
B2为5639平4层独栋,单层面积1252平
B3为7184平4层独栋,单层面积1708平
B4为6412平4层独栋,单层面积1379平
户型参数:
层高:一层7.2米,标准层4.5米
承重:一层2吨/平,标准层500KG/吨
货梯:3吨,尺寸为2.5米*2.2米*2.1米
柱距:8.1*8.1米
物流门:3*3.5米
【项目交通】
比邻G3京台高速公路 城市六环路
高速公路:距离南六环600米,距离京台高速2.5公里,距离大兴机场高速2.9公里,距离机场20公里,开车20分钟车程,距离南中轴路800米,距离通武线4公里。
公交:兴67,兴63,兴940,841
轨道交通:距离地铁大兴机场线大兴新城站5公里, 距离4号线瀛海地铁站4公里
【园区配套】
1、燃气入园
2、地下停车场
3、员工餐厅
4、员工宿舍
1822 平米
1500 平米
6500 平米
300 平米
5000 平米
480 平米
300 平米
5000 平米
5300 平米
3300 平米