
联东U谷.廊坊国际企业港
廊坊项目产品很全,框架厂房,轻钢厂房,定制厂房都有的,可租可售,产业政策宽松,欢迎各生产企业安家落户
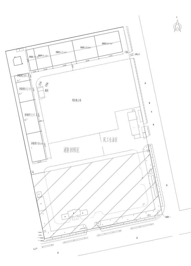
【位置】廊坊经济开发区
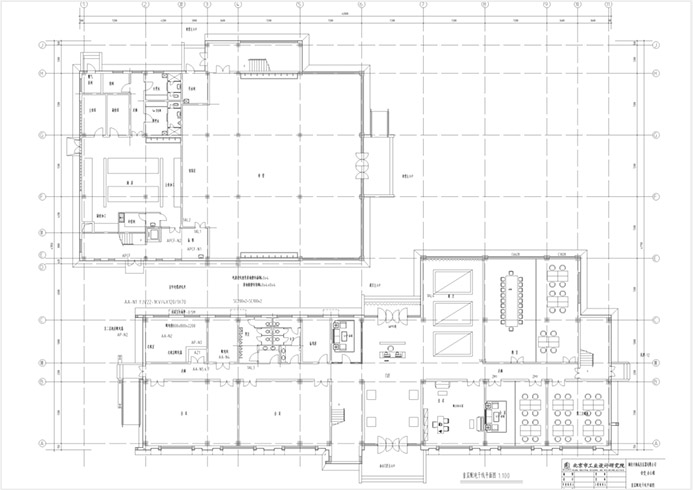
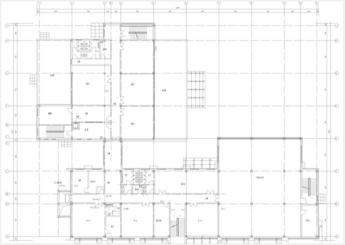
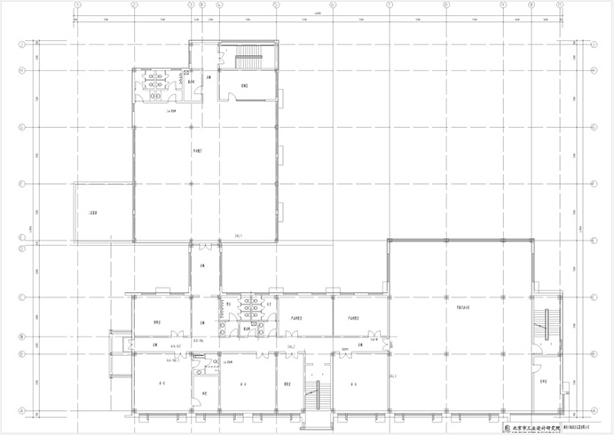
【面积】总建筑面积24万㎡ 分层面积:400–1177㎡ 整栋面积1400–6400㎡
【结构】框架厂房/轻钢厂房
【价格】框架厂房均价7200—9500元/轻钢厂房1.1/㎡/天
【层高】框架厂房一层7.2米/6米 标准层4.2米/轻钢厂房9m–18m(可上航车)
【交通】京沪高速廊坊出口3公里,805快车、805慢车可直达北京
【配套】塞纳荣府、花栖左岸、憩园等多个住宅小区,临近廊坊会展中心,廊坊大学城商圈
【业态】生产厂房为主,欢迎机械加工、汽车零配件,仪器仪表等各生产加工企业
7000 平米
1822 平米
1500 平米
6500 平米
300 平米
5000 平米
480 平米
300 平米
5000 平米
5300 平米