首页
厂房信息
库房信息
土地信息
写字楼信息
一手园区
求租求购
新闻资讯
登录
广告
广告
搜 索
联东U谷
金田恒业
茂华工厂
免费选址通道
首页 >
厂房信息
> 北京通州燕郊厂房出租
北京通州燕郊厂房出租
编号:WS_11604 更新时间: 2010/9/19 9:41:00
基本信息
所在区域:
北京周边-其他 燕郊
占地面积:
16753平米
建筑面积:
16753
平米
车间面积:
8374平米
办公面积:
1000平米
供求类型:
出租
参考价格:
面议
联系方式:
李先生
13520221780
开通网站会员,享有更多服务 18500826848
详细信息
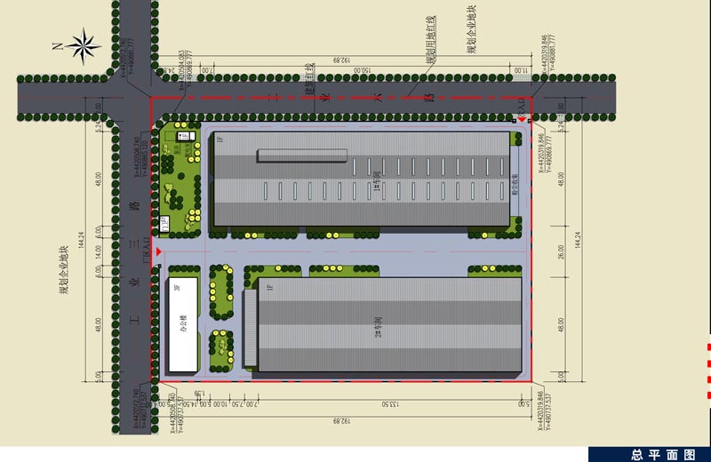
通州区燕郊8374平米厂房招租,交通便利,占地面积20亩标准钢构厂房,建筑面积8374平米,建筑高度8.15米,可装喷淋及天吊,另外有面积空地可以安客户要求定制厂房。环境优美,水电齐全,有意者来电洽谈,广告中介勿扰
图片展示
推荐房源
通州马驹桥厂房..
类型:厂房
13520221780
顺义空港C区标准..
类型:厂房
13520221780
河北省廊坊市固..
类型:厂房
13520221780
通州、顺义、平..
类型:厂房
13520221780
推荐房源
新元科技园厂房..
类型:厂房
13520221780
天津市静海区中..
类型:厂房
13520221780
天津市武清区多..
类型:厂房
13520221780
最新厂房
(出租)通州宋庄300小..
300 平米
(出租) (出租)丰台区..
5000 平米
(出租)出租厂房住房整..
480 平米
(出租)背靠京开高速与..
300 平米
(出租) (出租)丰台区..
5000 平米
(出租)顺义金马工业区..
5300 平米
山东省滨州市阳信县河..
3300 平米
大兴区庞各庄开发区厂..
7 亩
北京市房山区石楼镇杨..
1000 平米
(出租)位于六环路出口..
1550 平米