首页
厂房信息
库房信息
土地信息
写字楼信息
一手园区
求租求购
新闻资讯
登录
广告
广告
搜 索
联东U谷
金田恒业
茂华工厂
免费选址通道
首页 >
库房信息
>独栋别墅出租,精装修出租,带80平米小院及多个车位自住、
独栋别墅出租,精装修出租,带80平米小院及多个车位自住、
编号:SH_1568963215 更新时间: 2019/9/20 15:06:55
基本信息
所在区域:
房山区-窦店 北京
占地面积:
450平米
仓库总面积:
办公面积:
供求类型:
出租
参考价格:
0.50
元/平米/天
层 高:
联系方式:
崔女士
13520221780
开通网站会员,享有更多服务 18500826848
详细信息
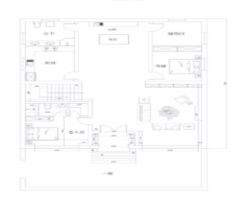
临街独栋别墅出租,精装修出租,带80平米小院及多个车位;可用于自住、办公、库房、商业,小型加工等。临近南六环及京石高速交通便利停车方便;周边200米内超市、药房、休闲广场一应俱全,可满足各种日常需求,环境优美。上下两层7卧、4厅、4卫、1厨,全明户型,非常适宜居住,暖气、有线、上下水一应俱全。建筑面积450平米。
图片展示
推荐房源
宋家庄、朝阳区..
类型:库房
13520221780
通州区潞城厂库..
类型:库房
13520221780
天津武清开发区..
类型:厂房
13520221780
顺义区北小营镇..
类型:厂房
13520221780
推荐房源
廊坊市固安工业..
类型:库房
13520221780
顺义区北小营镇..
类型:库房
13520221780
顺义精品厂库房..
类型:库房
13520221780
最新库房
(出租)丰西独院仓库整..
1000 平米
(出租)冷库6间共计300..
300 平米
(出租)小型库房出租白..
300 平米
通州张家湾独院库房出..
4000 平米
顺义木林镇库房出租
35323 平米
大兴区京开高速库房出..
23448.88 平米
大兴青云店平库出租
13500 平米
通州开发区高台库出租
25000 平米
(出租)出租海淀上庄库..
2100 平米
(出租)出租昌平厂库房..
300 平米