大 兴 青 云 店,通 州 永 乐 店
厂库房分别为:
一、通州开发区高台库
通州高台库项目介绍,占地面积:25000平米,库房面积:19000平米,办公楼面积:2000平米,共3层。报价:1.xx元/天/平米,面议。
【园区简介】
北京通州园区,总建筑面积21000平米,地上整体建筑高度14米。园区内共有2栋建筑,由办公和库房组成,园区配套完善、资质齐全,适用于快递物流,仓储周转等多种仓储作业。
【位置交通优越】
库房位于北京市通州开发区西临京津高速北邻首都环线高速5公里,西邻京京津高速2公里。
【园区优势】
建筑及相应配套设备设施完善,手续齐全,厂区24小时安保,24小时物业值班,拥有自己的物业配套服。
二、大兴青云店平库
1、地理位置:

2、房源介绍:
大兴青云店9000平米平库,面积共9000平米,其中办公住宿700平米,库房8300平米,库房檐高8米,空地4500平米。报价1.1含票。
【园区简介】
北京青云店项目占地13500平米,总建筑面积9000平米,办公住宿700平米,8300平米库房,整体建筑高度13米。园区内共有2栋建筑,由办公和库房组成,园区配套完善、资质齐全,适用于快递物流,仓储周转等多种仓储作业。
【位置交通优越】
库房位于北京市青云店,园区门口即为104国道,仅临北京亦庄开发区南六环,距离北京奔驰,小米汽车8公里,属于高端产业集群片区。
【园区优势】
建筑及相应配套设备设施完善,手续齐全,厂区24小时安保,24小时物业值班,拥有自己的物业配套服。
三、大兴区京开高速库房
1、该项目位于大兴区京开高速东侧 1 公里中国黑色金属材料北京有限公司院内。住宿办公面积 933.3 平米。库房面积23448.88 平米,檐高 14 米,门前回车距离超 300 米,宽度110 米,满足各种大型车辆停靠,现该项目为平地库,已开始改造为标准高台库,库内消防设施升级为丙二类。预计使用时间 2022 年 11 月 25 日该项目可正式启用。






库房改造如下:
1、库房东面做高5米,宽4米的外挑雨棚,长度为78米。两侧位置各安装125A充电桩开关20个。共计40个。小库外墙拆除做行车通道,宽度为10米。
2、做好屋面防水,保证库内屋面及新建雨棚不漏水。
3、库区内需安装IED灯,照度达到20OLux:库区内需预留120平方电缆线,400A开关配电箱2个。
4、库内原有非结构墙体全部拆除,西侧外墙安装卷帘门,库内新建10间办公室,具体位置待定。
5、库区北面月台内退15米,南面月台内退7米,月台抬高1.3米,库内地面整体抬高,库外四周道路需硬化,改造路面高度与月台高度一致,混凝土厚度土0.2米,按规范配置钢筋网,室外地面荷载3吨/平米,地面荷载2吨/平米。表面金刚砂收光,确保地面不起沙,月台四周安装圈粱及槽钢防撞横梁。
6、库房北面安装11个登高调节板。
7、库内原有柱子及门框处安装防撞柱,库内及改建区域的消防设施需按规范配备消防栓、报警设施、疏散指示、应急照明及相关消防设施,消防等级达到丙二类消防等级。
8、库外叉车充电、电车充电区及汽车充电区的地面做好散水处理,并按消防要求配备相关消防设施。
9、库区需要提供80OKW、1600A的总开关,分成2个400A库区总电箱,4个125A叉车充电箱、4个63A分电箱开关,其他备用,具体参见图纸。
10、其他需求,参照图纸标注要求,承租方会在出租方改造时提出,并有出租方同步完成。
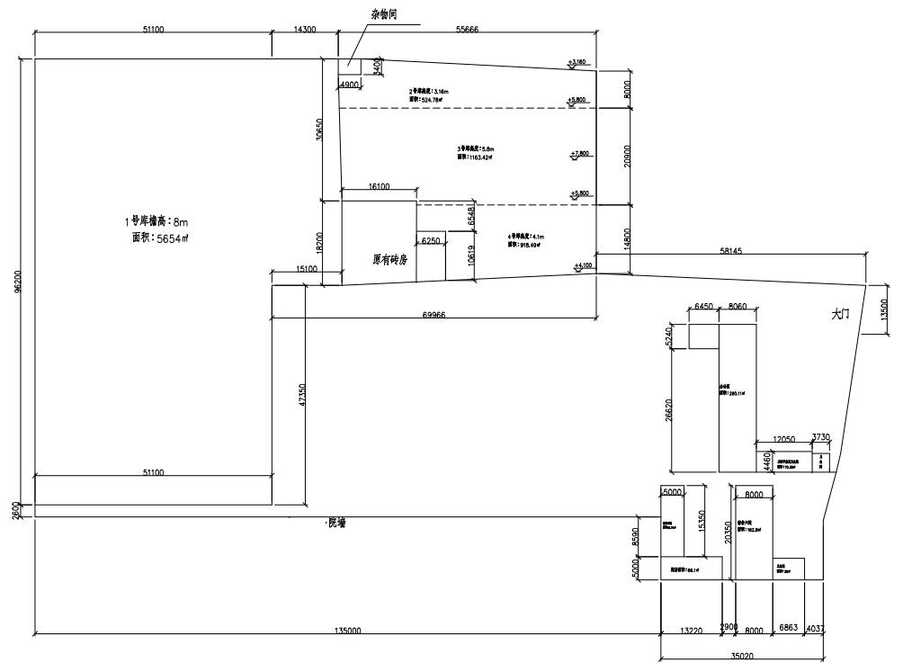
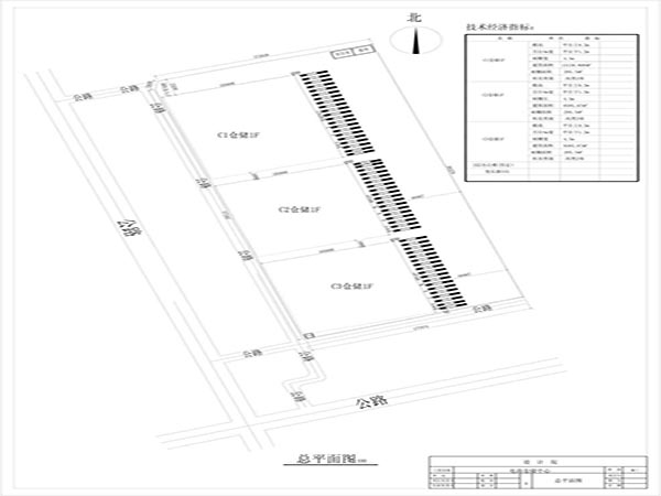
四、顺义木林镇库房
1、库房位置:位于顺义区木林镇蒋各庄村(木北路北50米处),北距大广高速20公里,南距京平高速25公里,交通非常便利。
.jpg)
.jpg)
2、库房报价:具体价格面议。
3、库房面积:总场地占地35323平米,库房建筑共31000平米,其中①号库12551米,②号库9881平米,③号库9165平米,配有住宿600平米、办公2900平米、车辆停放周转场地大、不受限制。
4、库房参数:库房檐高10米、脊高11米、内置月台高度1.3米、雨棚宽4.5米。消防设施有烟感、喷淋、消防栓。
5、库区主干道:道路宽阔,车辆不限行,进出库区方便,主干道至库区大门口10米。
6、相关证件:该库房规划用地性质为工业用地,符合两规,可做仓储、物流、电商等相关业务。
7、合作方式:随时入驻、可整租、可分租、可自管、可托管、可提供专业的运输配送服务、多种合作模式供您选择,诚意招租、期待您的加入!
五、天津武清高台库
距北京东五环化工桥60公里。(天津武清)优质库房招租
该库房位于天津市武清区距离北京市东五环化工桥60公里,距离京津高速2公里里。103国道东侧。地理位置绝佳,库区布局合理,证件齐全,于今年10月份完工投入使用,现诚意招商!!!具体价格面议。
该库房为国际标准高台库。檐高11米,(台高1.2米),证件手续齐全,建筑消防标准丙二类!分三个库区,全长度400米,宽度110米。装卸平台4米宽,雨棚4.5米宽。配备400米长,50米宽停车场周转区域,方便货物装卸,车辆停放!库区另配备办公、宿舍楼。
七、天津武清区大孟庄库房
库房位于天津武清区大孟庄镇东大孟庄村(京津高速大孟庄出口3公里)附近,库区道路宽阔,车辆不限行,库区大门距离主干道103国道入口500米。 库房参数:建筑面积40000平米,三个高台库,库房檐高9.2米,月台宽4米,月台高度1.2米,雨棚宽4.5米。 库房独门独院,手续齐全,已立项仓储,物流,电商等。库房随时入住,可整租,可分租,可自管,可托管,可提供专业的运输配送服务,多种合作模式供您选择,诚意招租,期待您的加入。












.jpg)
.jpg)
.jpg)
.jpg)
.jpg)
.jpg)
.jpg)
.jpg)
.jpg)
.jpg)
.jpg)
.jpg)
.jpg)
.jpg)
.jpg)
.jpg)
.jpg)
.jpg)
.jpg)
.jpg)
.jpg)
.jpg)
.jpg)
.jpg)
.jpg)
.jpg)
.jpg)
.jpg)
.jpg)
.jpg)
.jpg)
.jpg)
.jpg)
.jpg)
.jpg)
.jpg)